Details

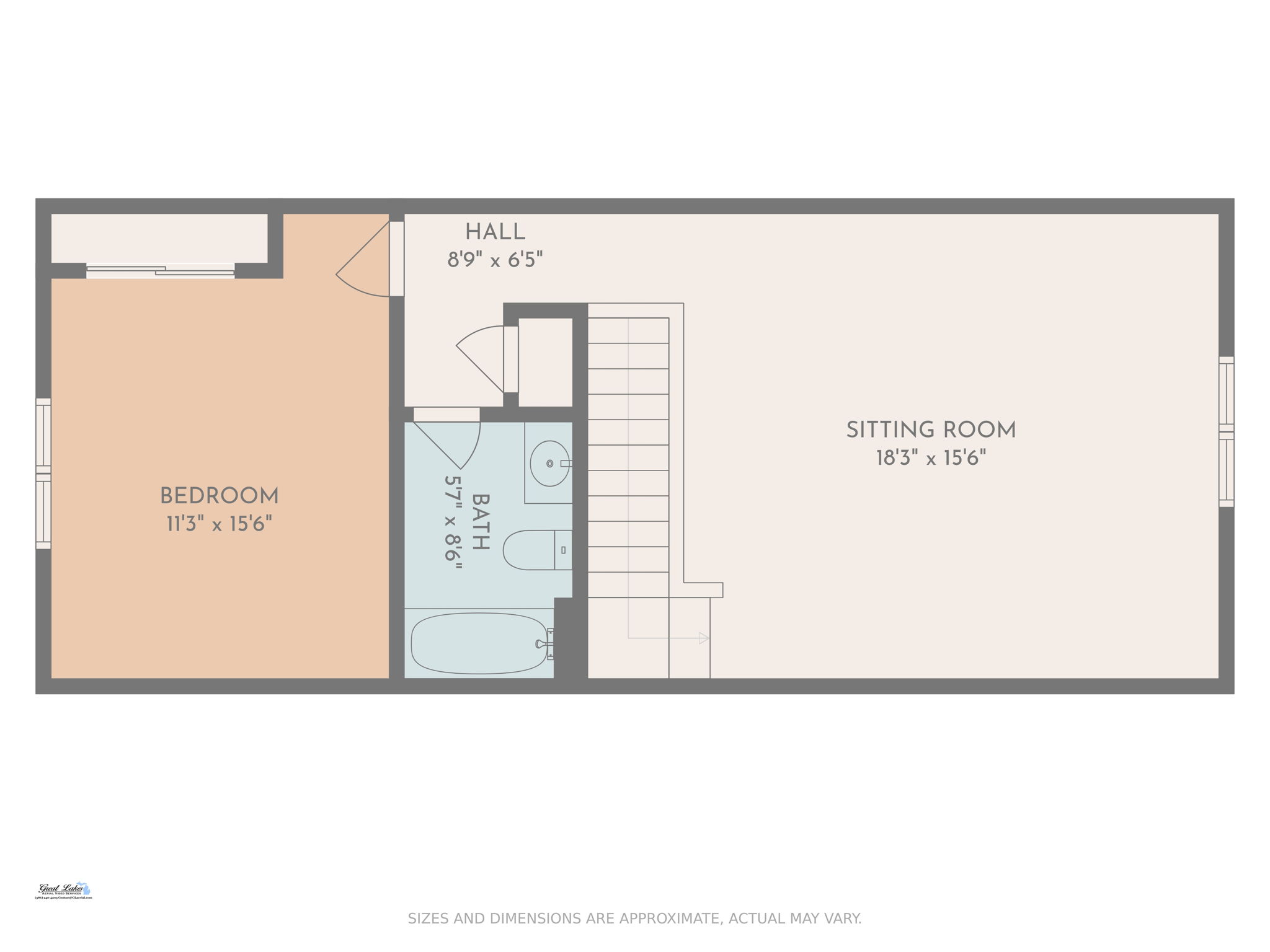
Barely lived in! Why build new & pay increased construction costs? Immediate occupancy in this elegantly appointed "Abbeyville" cape cod nestled perfectly in prestigious semi maintenance free community. Construction upgrades of $83K. Granite tops T/O. Wooded view, open floor plan ideal for entertaining, magnificent kitchen boasts 42" cabinetry w/crown molding, oversized island w/seating, SS appliances, dining area, great room w/fireplace. 1st floor w/extensive crown molding, trim & wainscoting. Wood floors in entry hall, kitchen, dining & great rm. Luxurious owner bedroom suite w/tray ceiling, dual vanity, large WIC. Study w/double door entrance, 2nd bedroom, full bath and laundry room. The 2nd floor with a large family room loft, bedroom & full bath. Two inch horizontal blinds T/O. Enjoy privacy on the large composite deck. Annual HOA includes snow removal & lawn maintenance.

  • $439,900
  • 3 Bedrooms
  • 3 Bathrooms
  • 2,503 Sq/ft
  • 2 Parking Spots
  • Built in 2017

Images

Floor Plans

Contact

Feel free to contact us for more details!

Videos

Content Coming Soon